Request an INSTANT Valuation

Hale Works Apartments, Daneland Walk, N17,

2 Bedroom Flat for Sale

£575,000

  • 2 bedroom
  • 2 bathroom
  • 1 reception

Key Features

  • Ground rent £500 p/a
  • Service Charge £3692
  • Council Tax Band D
  • Large Balcony with expansive views
  • 18th Floor
  • EPC Rating B

Description

Exceptional 2-Bedroom Apartment in Anthology Hale Works A superb opportunity to purchase a contemporary 2-bedroom apartment in the landmark Anthology Hale Works development, located in the heart of Tottenham Hale. Situated on the 18th floor, this bright and beautifully finished home offers generous space, modern design, and access to premium amenities – perfect for first-time buyers, young professionals, or investors. Property Highlights 2 Double Bedrooms Spacious open-plan living and dining area with floor-to-ceiling windows Private balcony offering far-reaching views and natural light throughout Fully integrated modern kitchen with induction hob, fridge/freezer, dishwasher, and washer/dryer Ample storage, including built-in hallway cupboard High-spec finish with central heating and ventilation system for year-round comfort Exclusive Development Features 24/7 Concierge & Secure Entry System Impressive 11th-Floor Sky Garden with panoramic views over the Walthamstow Wetlands Residents’ Business Lounge – ideal for working from home or entertaining Elegant communal lobby and lift access Location Benefits Moments from Tottenham Hale Station (Victoria Line & National Rail) 12 minutes to King’s Cross, under 20 minutes to Oxford Circus Close proximity to Tesco/Asda Express, The Gym Group, dry cleaners, and Tottenham Hale Retail Park Surrounded by green spaces, with access to scenic walks along the River Lea Why Buy Here? Anthology Hale Works is part of the wider regeneration of Tottenham Hale, offering buyers a chance to invest in a growing and vibrant community with excellent transport links and increasing local amenities. Ideal as a stylish first home or a smart rental investment in an up-and-coming Zone 3 location. Early viewing highly recommended.


Location


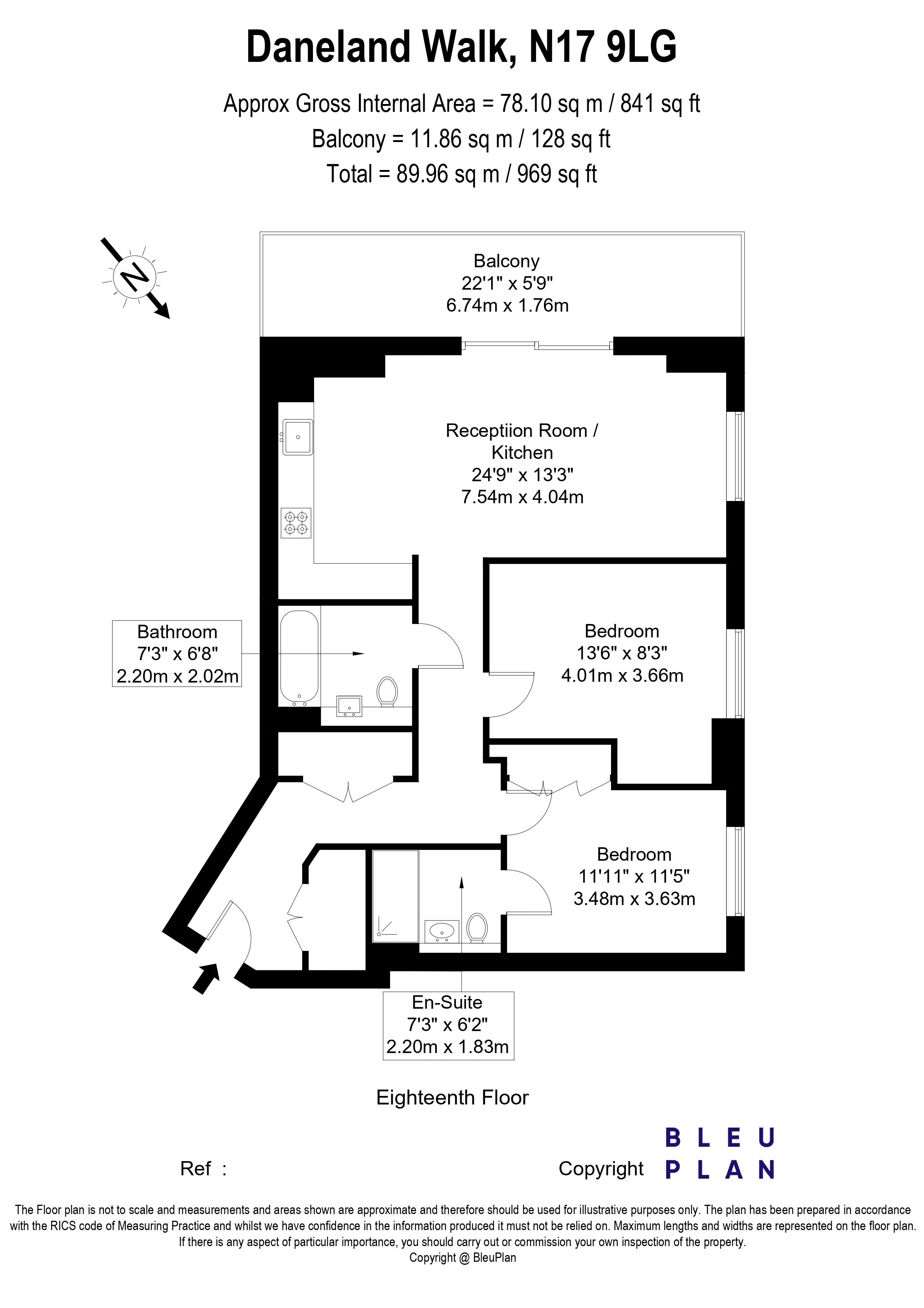
Floorplan

Floorplan

Video Tour

@homefinders_london

*This mortgage calculator is provided for general information purposes only. It's intended to provide you with an estimate of your potential mortgage payments and does not constitute an offer of finance or advice. The calculations are based on the information you provide and do not take into account your individual needs and circumstances.

Remember, your home may be repossessed if you do not keep up repayments on your mortgage.

Calculate Your Stamp Duty
£
Results
Stamp Duty To Pay:
Effective Rate:
Tax Band % Taxable Sum Tax

£ 575000
£ 0
Your estimated gross rental yield would be:
0.00%