Request an INSTANT Valuation

Thornhill Road, Leyton, London, E10,

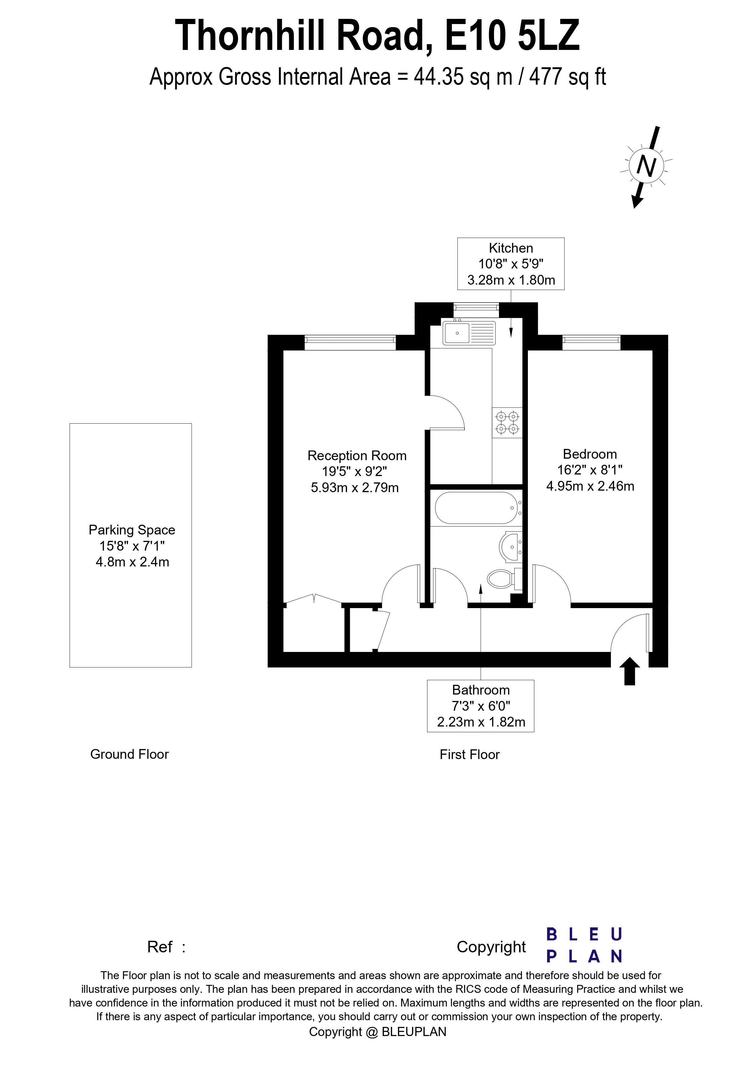
1 Bedroom Flat

£275,000

  • 1 bedroom
  • 1 bathroom
  • 1 reception

Key Features

  • New Lease
  • EPC - C
  • Council Tax Band B
  • Gated development
  • Secure Parking
  • Flexible viewing options 7 days a week

Description



Offered chain-free with a brand new lease, this one-bedroom flat is situated within a secure gated development on Thornhill Road, Leyton. The property boasts off-street parking, access to a communal garden, and a convenient external storage unit. The flat is well-appointed, with double-glazed windows enhancing comfort and energy efficiency throughout.


Internally, the property features a bright and spacious reception room with elegant wooden flooring, a separate fitted kitchen, a generously proportioned bedroom, and a fully tiled modern bathroom. The thoughtfully designed layout ensures a comfortable living experience, while the high-quality finishes add a touch of sophistication.


Located in the sought-after Salway House, the flat benefits from proximity to Leyton Station, providing excellent transport links. Additionally, the area offers an array of shops, restaurants, and local amenities within walking distance. This property presents an ideal opportunity for first-time buyers and investors alike. Please contact us to arrange a viewing


Location


Floorplan

Floorplan

Video Tour

@homefinders_london

*This mortgage calculator is provided for general information purposes only. It's intended to provide you with an estimate of your potential mortgage payments and does not constitute an offer of finance or advice. The calculations are based on the information you provide and do not take into account your individual needs and circumstances.

Remember, your home may be repossessed if you do not keep up repayments on your mortgage.

Calculate Your Stamp Duty
£
Results
Stamp Duty To Pay:
Effective Rate:
Tax Band % Taxable Sum Tax

£ 275000
£ 0
Your estimated gross rental yield would be:
0.00%